Gelijkvloersappartement op de zeedijk te Wenduine
RICHTPRIJS – Deze prijs is een richtprijs. Elk bod boven of onder deze prijs zal worden voorgelegd aan de eigenaar, die deze al dan niet kan aanvaarden.
De omgeving
Droom jij met dit herfstweer ook al van lange zomerdagen, een frisse bries en het geluid van de golven? Dit gelijkvloersappartement op de zeedijk van Wenduine is de perfecte uitvalsbasis voor een gezellige vakantie of een slimme investering aan de kust.
De indeling
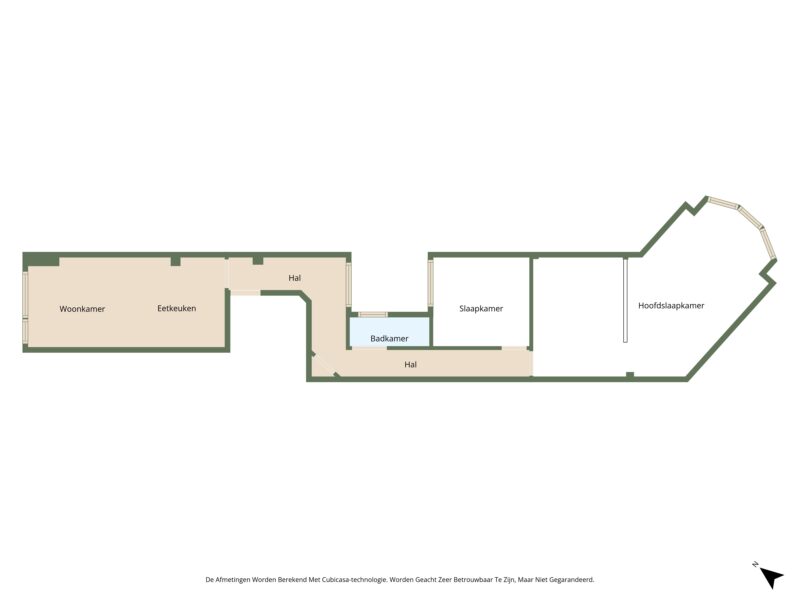
De leefruimte aan de voorzijde is licht en open, met een keuken en praktisch kookeiland waar je gezellig kunt zitten. Het appartement is instapklaar, maar kan met een persoonlijke touch helemaal naar jouw smaak worden ingericht.
De echte verrassing wacht achteraan: een ruime plek met momenteel twee slaapkamers, maar waar je gemakkelijk drie slaapkamers kunt creëren of een creatieve invulling kunt geven die helemaal bij jou past.
Daarnaast is er een doucheruimte met toilet. Klein, maar netjes afgewerkt.
Extra informatie
Pluspunten:
Zeezicht
Instapklaar
Twee slaapkamers met de mogelijkheid om een derde te creëren
Of je nu op zoek bent naar een tweede verblijf, een verhuurinvestering, of gewoon een plek aan zee om te ontspannen: dit appartement biedt een wereld aan mogelijkheden. Met een beetje fantasie en liefde maak je er iets unieks van!
Stedenbouw in aanvraag. Het vermelde oppervlakte is indicatief en gebaseerd op het EPC-attest.
Interesse? Bel mij op het telefoonnummer 0492/77.07.67 of stuur een e-mail naar info@elvavastgoed.be

